Museum of the Incense Road
At the heart of AlUla, where the history of trade and nature converge, the Museum of the Incense Road emerges as a bridge between the urban and the landscape. Opposed to the idea of the museum as a self-contained and isolated element, its programme expands into a series of gardens, plazas, and exhibition spaces that invite people to have an embodied experience of the site—a doorway between AlJadidah and the Wadi.
The Incense Road: An Ancient Trade
Located northwest of the province of Medina, AlUla has witnessed 2,500 years of human settlement. The region was part of the complex trade system known as the Incense Road, which spanned from Egypt to India across what we know today as Saudi Arabia. As commerce flourished, so did the settlements, reaching their height when Nabateans took control of the area in the first century BCE. Three centuries later, the Roman Empire took over the valley, but prosperity waned due to AlUla's remoteness and the rise of maritime trade. Over time, the area has experienced centuries of change, with different civilisations leaving their mark.
However, AlUla's heritage value stems not only from its long record of human settlements but also from its unique geography. Surrounded by prominent rock formations, the region extends along the Wadi valley under palm groves, which allow for a rich ecosystem that thrives amid the harsh conditions of the desert. From its plateau, one can enjoy panoramic views stretching across the valley. These vistas frame neighbouring districts, home to some of Saudi Arabia's most ancient archaeological discoveries, such as Jabal Ikmah and Hegra.
Today, the area is undergoing significant transformation, as AlUla is rapidly becoming a hub of cultural, natural, and heritage assets scattered across the desert. In AlJadidah, the Museum of the Incense Road is envisioned as one part of this constellation. How can a museum engage with the complex ecosystem and history of this land?




The museum sits between the urban fabric and the Wadi, a canal that keeps the valley green. This site was of great use during the commercial route of the incense as its climate conditions allowed for human settlement.


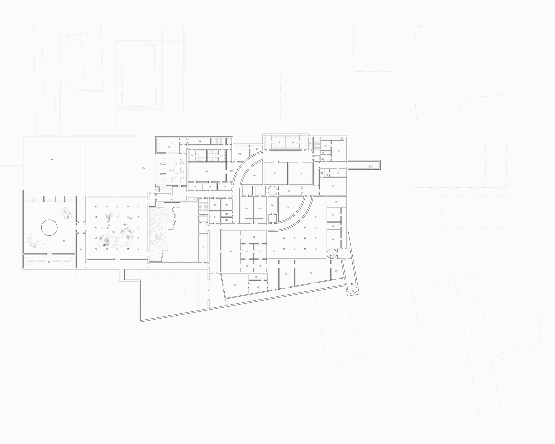
The Museum Reimagined: An Embodied Experience
Reimagining the museum as an integral part of the landscape rather than as an isolated object transformed our approach. Instead of conceiving the museum as a solid mass, its program unfolds into a series of gardens, polyvalent spaces and exhibitions, inviting visitors to connect with the site.
The layout follows the plot's south-north axis, adapting to the topography with varying levels that create diverse spatial experiences. A central plaza articulates the conjunction of the urban and the natural, preceded by a series of multi-layered spaces. Public courtyards, gardens, and promenades extend the museum's sensory experience outward, linking the museum with the dunes, palm groves, and rocks. These paths rejoin with ancient trails that were part of the Incense Road, tying them to the project's master plan.
Inside, galleries frame views of the raw landscape or with the museum's open programme, like the Incense Gardens and Botanic Courtyards. Exhibitions take advantage of dynamic and changing spatialities to tell the story of the incense road through immersive experiences. Inspired by local vernacular architecture, the material palette includes stone, mudbrick, adobe plaster, and wood. Thick walls, vaulted ceilings, and latticed windows are reinterpreted for contemporary functionality while remaining contextually grounded.
Working on this project allowed us to reimagine the museum as an intrinsic part of the land where it stands and not as an independent object. As a result, the building functions as an active cultural institution and a dynamic space where nature, heritage, and the city converge.







![mesura, studio: [object Object] (Slide 1)](https://cdn.sanity.io/images/xgk7j7tp/production/0d1284f77a17dba6f9e45093f3611da8d5fbe728-1920x2400.jpg?w=1920)
![mesura, studio: [object Object] (Slide 2)](https://cdn.sanity.io/images/xgk7j7tp/production/68fa1ccac288e448d1e5116c5f14f85f33cb7e79-1920x2400.jpg?w=1920)
![mesura, studio: [object Object] (Slide 3)](https://cdn.sanity.io/images/xgk7j7tp/production/fb272fa075bbf7983e9f119365a59738a447a2eb-1920x2400.jpg?w=1920)









